Caractéristiques
-
Surface 179.93 m²
-
Surface habitable 179.93 m²
-
Surface terrain 266 m²
-
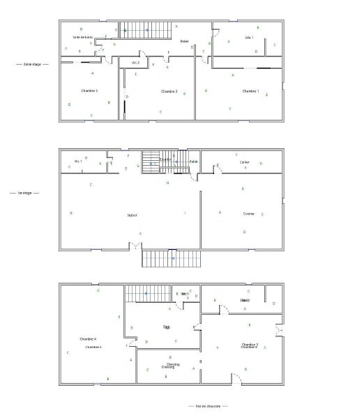
Nombre de pièces 7
-
Nombre de chambres 4
-
Nombre de salles de bain 1
-
Nombre de salles d'eau 2
-
Nombre de toilettes 3
-
Nombre de parkings 2
-
Terrasse 1
-
Nombre d' étages 3
-
Nombre de niveaux 3
Description
Mandat 637
BLACE - maison mitoyenne totalement rénovée - DPE C - 5 chambres-jardin - entre Saint Georges de Reneins et Arnas
Maison de 180m2 avec jardin qui n'attend que vos meubles et votre famille.
Prestations de qualité pour cette rénovation qui offre une magnifique pièce de vie lumineuse qui rejoint la cuisine totalement aménagée et équipée , agrémentée d'un cellier/buanderie
Vous aurez également un espace parental complet avec en séparé bureau ou salon TV ou 5eme chambre.
A l'étage 3 belles chambres toutes équipées de placards muraux aménagés ainsi que 2 salles d'eau - toilettes séparés à chaque niveau
Terrasse avec une avancée de toiture permettant d'installer une cuisine d'été
2 places de parking privé
PAS DE COPROPRIETE - entrée en indivision avec la maison mitoyenne (son jardin est à l'opposé de celle proposée à la vente) - portail neuf et motorisé pour l'entrée principale commune aux 2 maisons
Toiture suivie - Chauffage dans chaque pièce par PAC air/air et climatisation (neuves)
Fenêtres neuves en double vitrage
Sols en Travertin et parquets dans les chambres
Taxe Foncière : 441€
Depuis la maison, accès à la gare de Saint Georges de Reneins env. 10mn - accès autoroute Villefranche Nord à 15mn - Gare TGV Macon Loche en 25mn
Blacé village dynamique à quelques minutes.
Je vous invite à m'appeler ou m'écrire, pour programmer la visite de cette maison qu'il ne s'agit pas de manquer. Virginia VANETTI : 06.12.58.78.21 ou v.vanetti@pietrapolis.fr
www.pietrapolis.fr/virginia.vanetti
Agent commercial 503301772 RSAC Villefranche Tarare
Maison de 180m2 avec jardin qui n'attend que vos meubles et votre famille.
Prestations de qualité pour cette rénovation qui offre une magnifique pièce de vie lumineuse qui rejoint la cuisine totalement aménagée et équipée , agrémentée d'un cellier/buanderie
Vous aurez également un espace parental complet avec en séparé bureau ou salon TV ou 5eme chambre.
A l'étage 3 belles chambres toutes équipées de placards muraux aménagés ainsi que 2 salles d'eau - toilettes séparés à chaque niveau
Terrasse avec une avancée de toiture permettant d'installer une cuisine d'été
2 places de parking privé
PAS DE COPROPRIETE - entrée en indivision avec la maison mitoyenne (son jardin est à l'opposé de celle proposée à la vente) - portail neuf et motorisé pour l'entrée principale commune aux 2 maisons
Toiture suivie - Chauffage dans chaque pièce par PAC air/air et climatisation (neuves)
Fenêtres neuves en double vitrage
Sols en Travertin et parquets dans les chambres
Taxe Foncière : 441€
Depuis la maison, accès à la gare de Saint Georges de Reneins env. 10mn - accès autoroute Villefranche Nord à 15mn - Gare TGV Macon Loche en 25mn
Blacé village dynamique à quelques minutes.
Je vous invite à m'appeler ou m'écrire, pour programmer la visite de cette maison qu'il ne s'agit pas de manquer. Virginia VANETTI : 06.12.58.78.21 ou v.vanetti@pietrapolis.fr
www.pietrapolis.fr/virginia.vanetti
Agent commercial 503301772 RSAC Villefranche Tarare
Localisation et points d'intérêts
Bilan sur les performances énergétiques du bien
B
Date de réalisation : 19/06/2025Classe énergétique
B
97 kWh/m².an
Classe climatique
A
3 kg CO2/m².an
Estimation des coûts énergétiques annuels du logement
Entre 1360€ et 1890€ par an
Prix moyens de l'énergie indexés sur l'année 0 (abonnements inclus)
Prix moyens de l'énergie indexés sur l'année 0 (abonnements inclus)
Les informations sur les risques auxquels ce bien est exposé sont disponibles sur le site Géorisques : www.georisques.gouv.fr
Biens similaires aux alentours
Exclusif
Maison - 5 pièces - 140 m²
69400 Arnas 449 000 €
Exclusif
Maison - 4 pièces - 169 m²
69640 Porte des Pierres Dorées 510 000 €
Exclusif
Maison - 4 pièces - 162 m²
69400 Porte des Pierres Dorées 495 000 €
Exclusif
Maison - 7 pièces - 269 m²
01140 Saint-Didier-sur-Chalaronne 398 000 €
Exclusif
Maison - 7 pièces - 190 m²
69400 Porte des Pierres Dorées 565 000 €
Exclusif
Sous-offre
Maison - 7 pièces - 200 m²
01140 ST-ETIENNE-SURCHALARONNE 459 000 €
Exclusif
Maison - 5 pièces - 120 m²
01480 Villeneuve 425 000 €
Maison - 5 pièces - 130 m²
69460 Saint-Étienne-la-Varenne 482 000 €Ce bien vous intéresse ?
Laissez un message
Votre contact
VANETTI Virginia
Pietrapolis Villefranche-sur-Saône