Caractéristiques
-
Surface 220 m²
-
Surface habitable 220 m²
-
Surface terrain 180 m²
-
Nombre de pièces 10
-
Nombre de chambres 5
-
Nombre de salles d'eau 3
-
Nombre de toilettes 3
-
Nombre de parkings 2
-
Chauffage collectif Collectif
-
Nombre d' étages 2
-
Nombre de niveaux 2
Description
Mandat 579
MONTMERLE CENTRE VILLAGE : maison à rafraichir avec potentiel rare sur la commune - parking et cour - dépendances - SANS VIS à VIS - possibilité logement indépendant
Rare sont les occasions de pouvoir profiter d'une grande maison avec du cachet, le charme de l'ancien, et du terrain + dépendances en centre village de Montmerle s/saone.
Maison qui s'adaptera à vos envies, puisque selon vos souhaits de vie
- vous pouvez occuper la totalité de la maison
- et/ou conserver une partie en logement locatif
- donner une autre vie à la dépendance et/ou la démolir et occuper la surface en jardin etc..
Actuellement je vous propose 2 maisons l'un d'env. 110m2 et l'autre d'env. 70m2 qui peuvent très facilement se raccorder par l'étage
Maison 1 =
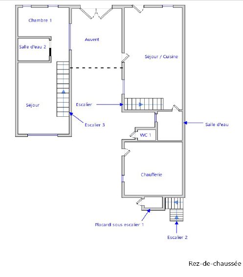
en rdc : pièce de vie avec cuisine - salle d'eau toilette
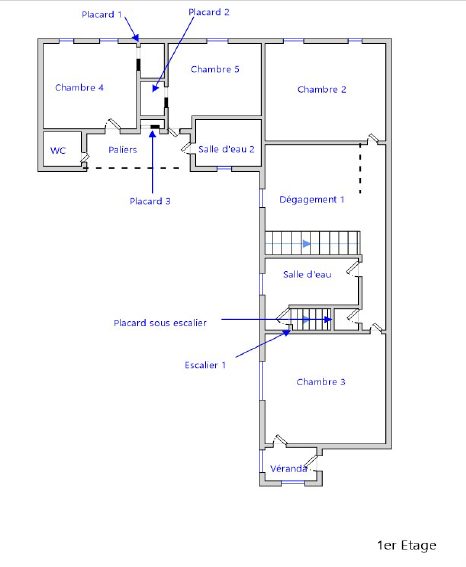
étage : grand dégagement (qui permettrait le raccord entre les 2 maisons) - 2 grandes chambres - salle d'eau avec toilette
étage supérieur : espace bureau ou rangement - très grande chambre avec hauteur sous plafond
Maison 2 =
en rdc : chambre avec salle d'eau - salon /salle à manger
étage : 2 chambres - salle d'eau - toilette
S'ajoutent une cave voutée en sous sol - une chaufferie/rangement - un toilette - ainsi que la dépendance de 80m2 env.
Aujourd'hui, l'espace extérieur n'est utilisé qu'en parking , mais il peut devenir jardin vert, en partie
L'accès voiture se fait par le porche aux grandes portes ouvrantes qui seraient aisées à être motorisées
La maison est parfaitement entretenue
Coté technique : fenêtres bois double vitrage - volets bois battants - chaudière au gaz de ville - parquets bois massif sur une partie de l'étage
Taxe foncière : 1130€ / an
Appelez moi sans tarder, je reste à votre écoute et à votre disposition pour tout renseignement complémentaire ou visites.
Virginia VANETTI : 06.12.58.78.21 ou v.vanetti@pietrapolis.fr
www.villefranche.pietrapolis.fr/virginia.vanetti
Agent commercial 503301772 RSAC Villefranche
Rare sont les occasions de pouvoir profiter d'une grande maison avec du cachet, le charme de l'ancien, et du terrain + dépendances en centre village de Montmerle s/saone.
Maison qui s'adaptera à vos envies, puisque selon vos souhaits de vie
- vous pouvez occuper la totalité de la maison
- et/ou conserver une partie en logement locatif
- donner une autre vie à la dépendance et/ou la démolir et occuper la surface en jardin etc..
Actuellement je vous propose 2 maisons l'un d'env. 110m2 et l'autre d'env. 70m2 qui peuvent très facilement se raccorder par l'étage
Maison 1 =
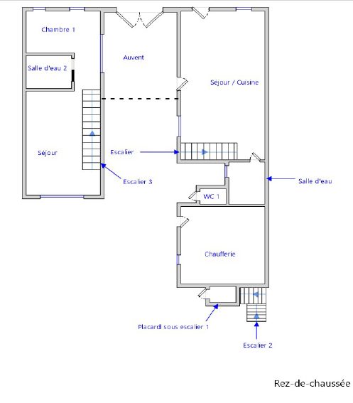
en rdc : pièce de vie avec cuisine - salle d'eau toilette
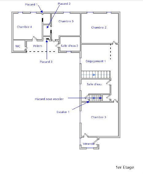
étage : grand dégagement (qui permettrait le raccord entre les 2 maisons) - 2 grandes chambres - salle d'eau avec toilette
étage supérieur : espace bureau ou rangement - très grande chambre avec hauteur sous plafond
Maison 2 =
en rdc : chambre avec salle d'eau - salon /salle à manger
étage : 2 chambres - salle d'eau - toilette
S'ajoutent une cave voutée en sous sol - une chaufferie/rangement - un toilette - ainsi que la dépendance de 80m2 env.
Aujourd'hui, l'espace extérieur n'est utilisé qu'en parking , mais il peut devenir jardin vert, en partie
L'accès voiture se fait par le porche aux grandes portes ouvrantes qui seraient aisées à être motorisées
La maison est parfaitement entretenue
Coté technique : fenêtres bois double vitrage - volets bois battants - chaudière au gaz de ville - parquets bois massif sur une partie de l'étage
Taxe foncière : 1130€ / an
Appelez moi sans tarder, je reste à votre écoute et à votre disposition pour tout renseignement complémentaire ou visites.
Virginia VANETTI : 06.12.58.78.21 ou v.vanetti@pietrapolis.fr
www.villefranche.pietrapolis.fr/virginia.vanetti
Agent commercial 503301772 RSAC Villefranche
Localisation et points d'intérêts
Bilan sur les performances énergétiques du bien
E
Date de réalisation : 21/08/2023Classe énergétique
E
276 kWh/m².an
Classe climatique
D
37 kg CO2/m².an
Estimation des coûts énergétiques annuels du logement
Entre 3700€ et 5060€ par an
Prix moyens de l'énergie indexés sur l'année 2021 (abonnements inclus)
Prix moyens de l'énergie indexés sur l'année 2021 (abonnements inclus)
Les informations sur les risques auxquels ce bien est exposé sont disponibles sur le site Géorisques : www.georisques.gouv.fr
Informations financières
Taxe foncière : 1 130 €
Biens similaires aux alentours

Exclusif
Maison - 7 pièces - 269 m²
01140 Saint-Didier-sur-Chalaronne 398 000 €
Exclusif
Maison - 6 pièces - 186 m²
69460 Saint-Étienne-la-Varenne 329 000 €
Maison - 6 pièces - 103 m²
69400 Villefranche-sur-Saône 299 000 €
Maison - 4 pièces - 109 m²
01600 Misérieux 369 000 €
Maison - 6 pièces - 149 m²
69400 Villefranche-sur-Saône 403 000 €
Maison - 4 pièces - 103 m²
69400 Arnas 298 000 €
Exclusif
Maison - 7 pièces - 200 m²
69840 Chénas 375 000 €
Exclusif
Maison - 5 pièces - 131 m²
01140 Saint-Étienne-sur-Chalaronne 309 000 €
Maison - 6 pièces - 149 m²
69830 Saint-Georges-de-Reneins 403 000 €
Maison - 4 pièces - 120 m²
71570 Romanèche-Thorins 285 000 €Ce bien vous intéresse ?
Laissez un message
Votre contact
VANETTI Virginia
Pietrapolis Villefranche-sur-Saône